
Autores: Gonzalo del Val, Toni Gelabert
Equipo: Clara Castañeda, García de los Muros Arquitectos
Cliente: Privado
Fotografía: José Hevia
Localización: Madrid
Superficie: 146 m²
Año: 2022
















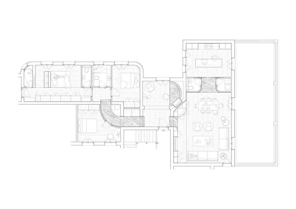
El edificio de viviendas para el Marqués de Amurrio fue construido entre 1925 y 1927 por el arquitecto Gustavo Fernández Balbuena, fundador y primer director de la revista Arquitectura en 1918, siendo una de las revistas en activo más antigua de Europa. Por la calidad de su arquitectura y la relevancia del autor, este edificio se encuentra dentro del listado patrimonial de Madrid. Situado en el barrio de Chamberí, la volumetría del conjunto, de patio abierto al exterior, responde a estrategias de higienización que se utilizaron en la época debido al intensivo planeamiento urbano, que daba como resultado patios interiores oscuros y mal ventilados. Como consecuencia de ese urbanismo, las plantas de vivienda acaban siendo largas y con núcleos húmedos recluidos al interior, siempre cerca de la entrada secundaria por donde accedía el personal de servicio.
La nueva propiedad requiere una revisión tipológica que renueve esta vivienda centenaria. Los deseos de disfrute por encima de la función simbólica de la antigua vivienda, junto a la necesidad de incorporar el teletrabajo al espacio doméstico, serán las instrucciones para diseñar la propuesta. Para ello, proponemos cuatro escenarios separados por una suerte de preludios o aperturas; pequeñas y breves piezas espaciales que, de forma independiente y con una narrativa propia, introducen a los espacios principales: habitaciones, salón, cocina y zona de trabajo. Cada una de estas piezas tiene una forma propia que se adapta a las necesidades de circulación y programa de la vivienda: dos portadas de geometría abocinada dan paso y enmarcan los eventos del salón y la cocina. Un pequeño deambulatorio, que atraviesa huecos existentes en el muro de carga, optimiza las circulaciones para obtener dos habitaciones de igual superficie y ganar almacenaje. Y, por último, una gran mesa adapta su geometría al espacio existente en la entrada principal, transformando el hall en un gabinete o studiolo.
Para definir los acabados se propone desmontarel estado anteriorpara restituirlo manteniendo la identidad y cualidad de la antigua vivienda, como el artesonado de escayola o el despiece de espiga en suelo, pero alterando y distorsionado sus geometrías y tamaños. Una serie de operaciones con elementos arquitectónicos próximos a la ebanistería, construyen un imaginario de curvas y boceles que dan forma a los preludios que separan las diferentes escenas domésticas: tanto a las productivas como a las más hedonistas.
The residential building for the Marqués de Amurrio was built between 1925 and 1927 by the architect Gustavo Fernández Balbuena, founder and first director of the Arquitectura magazine in 1918, being one of the oldest active magazines in Europe. Due to the quality of its architecture and the relevance of the author, this building is included on the Madrid heritage list. Located in the Chamberí neighborhood, the volume of the complex has a patio opened to the street which responds to the sanitation strategies that were used at the time due to intensive urban planning, that resulted in dark and poorly ventilated interior patios. As a consequence of this urban planning, the housing floors ended up being long and with wet areas confined to the interior, always near the secondary entrance through which the domestic servicehad access.
The new owner requires a typological review to renew this centennial home. The desire for enjoyment over and above the symbolic function of the old home, together with the need to incorporate remote working into the domestic space, will be the instructions for designing the proposal. For this, we propose four scenarios separated by a kind of preludes or openings; small and brief spatial pieces that, independently and with their own narrative, introduce the main spaces: bedrooms, living room, kitchen and working area. Each of these pieces has its own shape that adapts to the circulation and program needs of the home: two flared geometry thresholds give access and also frame the events in the living room and kitchen. A small ambulatory, which crosses the existing holes in the load-bearing wall, optimizes circulation to obtain two rooms with the same surface area and gain extra storage space. And finally, a large table adapts its geometry to the existing space at the main entrance, transforming the hall into a little office or anstudiolo.
To define the finishes, it is proposed to dismantle the previous state to restore it while maintaining the identity and quality of the old house, such as the plaster coffered ceiling or the herringbone quartering on the floor, but altering and distorting its geometries and sizes. A series of operations with architectural elements close to cabinetmaking build an imagery of curves and contours that shape the preludes that separate the different domestic scenes: both the productive ones and the more hedonistic ones.












