
Autores: Gonzalo del Val, Toni Gelabert
Equipo: Clara Castañeda, Ignacio Bengoechea
Cliente: Privado
Fotografía: José Hevia
Localización: Madrid
Superficie: 72 m²
Año: 2021




















Este proyecto responde a un contexto social y urbano que se ha desvelado en la ciudad después del confinamiento y la pandemia. Por un lado, ciertos inversores han puesto a la venta pisos turísticos de Madrid que no han podido amortizar durante meses y por otro, la vuelta a casa de muchos migrantes que trabajaban en el extranjero, gracias a la implantación de un mercado laboral más abierto al trabajo online. Estas dos situaciones marcan el inicio de este proyecto: la compra de dos antiguos pisos de alquiler turístico por parte de una propietaria que regresa a Madrid después de llevar once años trabajando entre Nueva York y Puerto Rico.
La vivienda se encuentra en el madrileño barrio de Lavapiés. Previamente había estado dividida en dos pequeños apartamentos independientes, con la distribución convencional de los alquileres turísticos, salón, cocina americana y una pequeña habitación. La propietaria propone recuperar la unidad de la vivienda para trasladarse allí.
Gracias a los nuevos modelos de teletrabajo, la nueva propietaria podrá seguir trabajando en Nueva York desde su nuevo punto base en la ciudad madrileña. Para ello surgen unos requerimientos contrapuestos: se desea una casa disfrutable y confortable pero a la vez dinámica para poder trabajar en ella, una vivienda que además este diseñada para una única persona pero capaz de funcionar con varios invitados y amigos de todas las partes del mundo.
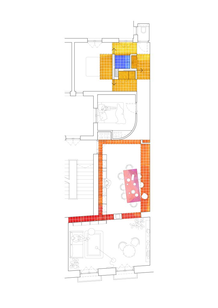
Así se propone un juego de tres piezas capaces de organizar programáticamente el entorno doméstico. Tres objetos enormes incrustados en este pequeño piso de 70m2. Cada una de las piezas cualifica el espacio, lo doméstica y construye ambientes diferenciados. Una caja de madera de abedul contiene la cocina y la librería que da cobertura a la zona del sofá, una estructura alicatada de baldosa asalmonada contiene el comedor y la entrada bajo un techo iluminado en rojo brillante, esta pieza separa la zona de dormitorios del salón. Y por última un tótem tecnificado, con forma de doble T y baldosas amarillas, organiza la habitación principal distribuyendo alrededor de sus caras cuatro programas domésticos: dormitorio, vestidor, lavabo y ducha. Las tres puertas correderas, estando abiertas dejan la habitación en posición suite con el baño asociado. Cuando las puertas que rodean la ducha y lavabo se cierran, el baño funciona independiente junto al inodoro en un cuarto colindante, permitiendo el acceso a la habitación principal. La posición estratégica de estas puertas correderas permite optimizar los diferentes usos y aprovechar al máximo los programas de la vivienda.
This project responds to a social and urban context that has been revealed in the city after the confinement and the pandemic. On the one hand, certain investors have put up for sale tourist apartments in Madrid that they have not been able to amortize for months and on the other, the return home of many migrants who worked abroad, thanks to the introduction of a labor market that is more open to online work. These two situations mark the beginning of this project: the purchase of two old tourist rental apartments by an owner who returns to Madrid after spending eleven years working between New York and Puerto Rico.
The house is located in the Madrid neighborhood of Lavapiés. Previously it had been divided into two small independent apartments, with the conventional distribution of tourist rentals: a living room, a kitchenette and a small room. The owner proposes to recover the unit of the house to move there.
Thanks to the new remote working models, the new owner will be able to continue working in New York from her new base in the city of Madrid. For this, some opposing requirements arise: you want a house that is enjoyable and comfortable but at the same time dynamic to be able to work in it, a house that is also designed for a single person but capable of working with several guests and friends from all over the world.
Thus, a three-piece game is proposed, capable of programmatically organize the domestic environment. Three huge objects embedded in this tiny 70m2 apartment. Each one of the pieces qualifies the space, domesticates it and builds differentiated environments. A birch wood box contains the kitchen and the bookcase that covers the sofa area, a salmon tiled structure contains the dining room and the entrance under a bright red illuminated ceiling, this piece separates the bedroom area from the living room. And, finally, a technified totem, shaped like a double T and covered with yellow tiles, organizes the main room by distributing four domestic programs around its faces: bedroom, dressing room, sink and shower. The three sliding doors, when opened, leave the room in a suite position with the associated bathroom. When the doors around the shower and sink are closed, the bathroom works independently next to the toilet in an adjoining room, allowing access to the main room. The strategic position of these sliding doors allows optimizing the different uses and making the most of the home’s programs.
















